KYN口-12型铠装移开式封闭开关设备

KYN口-12型铠装移开式封闭开关设备

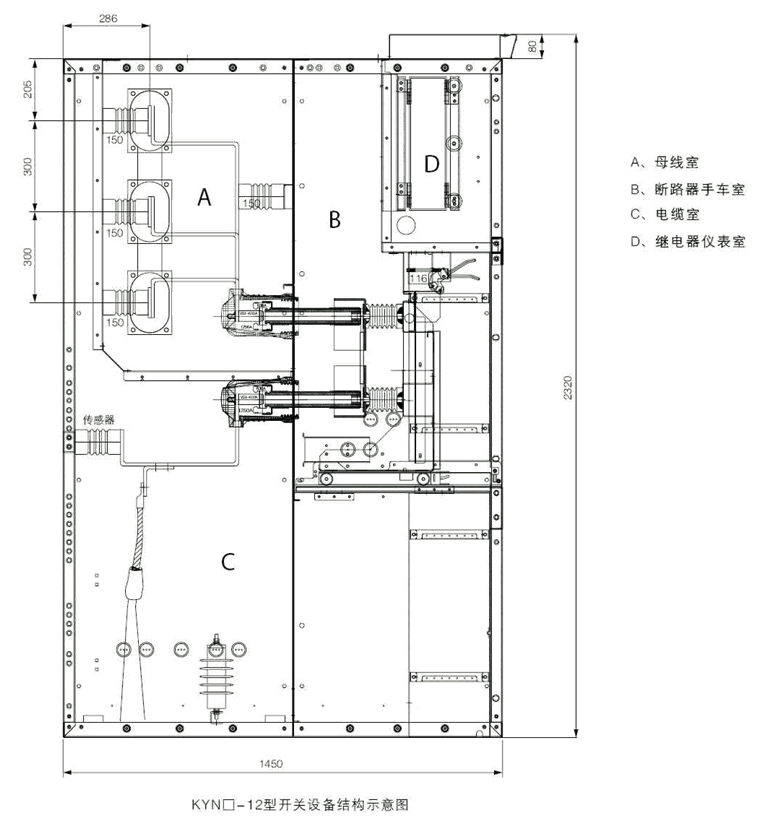
KYN口-12型铠装移开式封闭开关设备《以下简称:开关设备)它适用于三相交流50HZ电力系统,用于接受和分配电能并对电路实行控制,保护及监测。本产品符合标准:GB3906《3~35KV交流金属封闭开关设备》,GB/T11022《高压开关设备和控制设备标准共用技术要求》,IEC60298《额定电压1KV及以上交流金属封闭开关设备和控制设备》。

  1. 环境条件:最高温度:+40℃,最低温度 :-15℃,且在24AH测得的平均值不超过35℃;

  2. 温度条件如下:日相对湿度的平均值不超过95%;月相对湿度的平均值不超过90%;日水蒸气压力的平均值不超过2.2KPA;月水蒸气压力的平均值不超过1.8kpa;

  3. 海拔不超过1000m;

  4. 地震强度:不超过8级;

  5. 周围空气应不受腐蚀性或可燃气体,水蒸气等明显污染;

  6. 无剧烈振动场所;

  7. 超出GB3906规定的正常条件下使用时,由用户和本公司协商。



友情链接

客户热线

400-006-8755

24小时提供服务 服务QQ:29553358
周一至周五9:00-17:00
Copyright © 2017 体育app在线登录入口 All Rights Reserved. 浙ICP备19048974号-1